2 Pokoje 25,94 m2 - al. Chryzantem -Doły,przy ASP!
Łódź / Bałuty Pokaż na mapie ›
Dodane: Czwartek, 04 Wrzesień, 2025 20:02
279 000 zł
10731 zł/m2
Szczegóły ogłoszenia
- Kategoria: Mieszkania / Sprzedaż
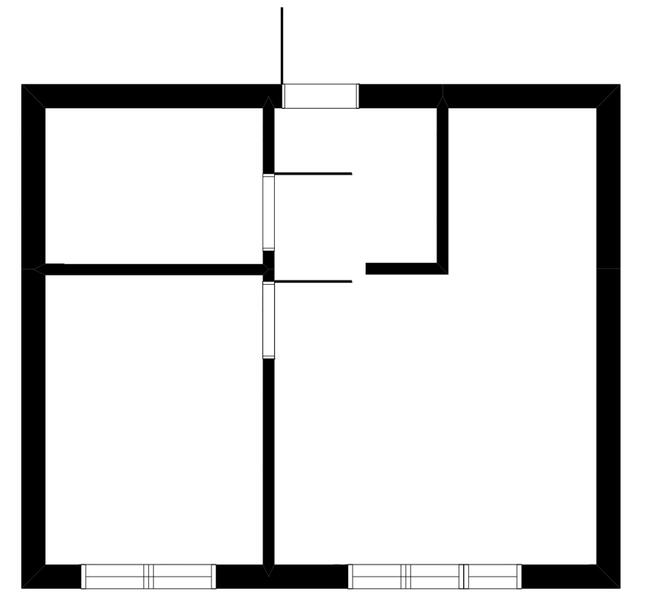
- Powierzchnia:26 m2
- Liczba pokoi:2 pokoje
- Zabudowa:Blok
- Piętro :5 piętro
- Liczba pięter:Wieżowiec
- Rynek:Pierwotny
- Rok budowy:1968
- Sprzedaż:Pośrednik
- Cena: 279 000 zł / 10731 zł/m2
Opis oferty
Oferta dodana za pomocą Multiportalu BeBrokerSzukasz niewielkiego, ale funkcjonalnego mieszkania gotowego do wprowadzenia? To miejsce spełni Twoje oczekiwania!
Na sprzedaż 2-pokojowe mieszkanie o powierzchni 25,94 m² położone na 5. piętrze w wieżowcu przy al. Chryzantem na łódzkich Dołach.
Lokal świeżo po generalnym remoncie, w przyszłym tygodniu będzie wyposażony w nowe meble wykonane na wymiar oraz sprzęt AGD w zabudowie. Wnętrze zaprojektowano z myślą o komforcie i maksymalnym wykorzystaniu przestrzeni – znajdziesz tu pokój dzienny z aneksem kuchennym, sypialnię oraz łazienkę z wc.
Okna wychodzą na wschód, dzięki czemu mieszkanie jest jasne i przyjemne już od rana.
Okolica jest spokojna i dobrze skomunikowana – w pobliżu sklepy, restauracje, Akademia Sztuk Pięknych, a do Uniwersytetu Łódzkiego dojedziesz w 10 minut komunikacją miejską. Zaledwie 15 minut do Manufaktury i 20 minut do autostrady A2 (Stryków).
Niski czynsz – tylko 318 zł, do tego jedynie opłaty za prąd wg zużycia.
Forma własności: spółdzielcze własnościowe prawo z możliwością założenia księgi wieczystej.
Dostępne od 15 listopada 2025 r.
Cena: 279 000 zł
Mieszkanie idealne dla singla, pary lub jako inwestycja pod wynajem.
Telefon: 604 - pokaż numer telefonu -
Sprawdź zainteresowanie tym ogłoszeniem
Wyświetlenia
Data dodania
Ostatnio widziany
Obserwujących
Wysłane zapytania
Odsłony telefonu
Powiadom o podobnych ogłoszeniach
Lokalizacja: Łódź
Kategoria: Nieruchomości » Mieszkania » Sprzedaż
Cena: od 237000 zł do 321000 zł Powierzchnia : od 22 m2 do 30 m2
Chcę otrzymywać powiadomienia o nowych ofertach
- Wypromuj ogłoszenie
- Zgłoś naruszenie
- Drukuj ulotkę
- Edytuj/usuń ogłoszenie
- Udostępnij ogłoszenie
- Dodaj na Facebook
































