3 pokoje, 47,22 mkw, ul. Kossaka,2 piętro, loggia
Łódź / Górna Pokaż na mapie ›
Dodane: Wtorek, 03 Marzec, 2026 12:44
350 000 zł
7447 zł/m2
Szczegóły ogłoszenia
- Kategoria: Mieszkania / Sprzedaż
- Powierzchnia:47 m2
- Zabudowa:Inne
- Piętro :2 piętro
- Liczba pięter:4 piętra
- Rynek:Wtórny
- Rok budowy:1971
- Sprzedaż:Pośrednik
- Cena: 350 000 zł / 7447 zł/m2
Opis oferty
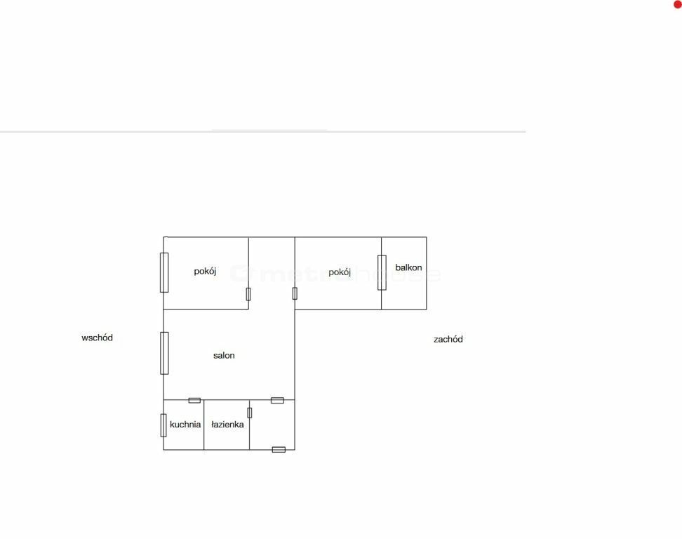
Mieszkanie 3-pokojowe, 47,22 m² Górna, ul. Kossaka 2 piętro, loggia do remontuNa sprzedaż mieszkanie o powierzchni 47,22 m², zlokalizowane na 2 piętrze w bloku z lat 70-tych na Górnej, ul. Kossaka. Budynek po termomodernizacji, zadbana klatka schodowa.
Lokal składa się z:
3 ustawnych pokoi
oddzielnej kuchni
łazienki
przedpokoju
balkonu typu loggia
Mieszkanie jest do remontu, co daje możliwość aranżacji wnętrza według własnych potrzeb i gustu. Idealna propozycja zarówno dla rodziny, jak i pod inwestycję (wynajem).
Atuty nieruchomości:
funkcjonalny układ pomieszczeń
2 piętro optymalna kondygnacja
loggia
budynek po ociepleniu
spokojna, dobrze skomunikowana okolica
w pobliżu sklepy, szkoły, przystanki komunikacji miejskiej
Czy wiesz, że możemy przygotować dla Ciebie prezentację on-line nieruchomości? Skontaktuj się z naszym Agentem i zapytaj o szczegóły.
Pomimo, iż Doradcy Metrohouse przykładają szczególną staranność do rzetelnego prezentowania informacji o nieruchomości, nie zawsze jest możliwa weryfikacja wszystkich danych przekazanych od osób trzecich. Niniejsza prezentacja oferty nie jest ofertą w rozumieniu Kodeksu Cywilnego i ma charakter wyłącznie informacyjny.
Sprawdź zainteresowanie tym ogłoszeniem
Wyświetlenia
Data dodania
Ostatnio widziany
Obserwujących
Wysłane zapytania
Odsłony telefonu
Powiadom o podobnych ogłoszeniach
Lokalizacja: Łódź
Kategoria: Nieruchomości » Mieszkania » Sprzedaż
Cena: od 297500 zł do 402500 zł Powierzchnia : od 40 m2 do 54 m2
Chcę otrzymywać powiadomienia o nowych ofertach
- Wypromuj ogłoszenie
- Zgłoś naruszenie
- Drukuj ulotkę
- Edytuj/usuń ogłoszenie
- Udostępnij ogłoszenie
- Dodaj na Facebook














