BIONANOPARK - ŁÓDZKA DOLINA KRZEMOWA
Łódź Pokaż na mapie ›
Dodane: Piątek, 28 Listopad, 2025 16:32
4 500 000 zł
329 zł/m2
Szczegóły ogłoszenia
- Kategoria: Działki i grunty / Sprzedaż
- Pow. działki:13663 m2
- Rodzaj działki:Inwestycyjna
- Sprzedaż:Pośrednik
- Cena: 4 500 000 zł / 329 zł/m2
Opis oferty
Nowoczesny teren inwestycyjny w sercu łódzkiej strefy technologii– Dubois / Bionanopark
Szukasz miejsca, które realnie pracuje na wartość Twojej
inwestycji?
Poznaj teren przy ul. Stanisława Dubois – wyjątkową przestrzeń
położoną w sercu Bionanoparku, jednego z najbardziej innowacyjnych
punktów na mapie Łodzi.
To tu łączy się nauka, biznes i nowoczesne technologie. Bionanopark
oferuje zaplecze badawcze, inkubacyjne i inwestycyjne, przyciągając
firmy z branż high-tech, med-tech, IT oraz sektorów przyszłości.
Otoczenie, które inspiruje do rozwoju. W sąsiednich budynkach
działają nowoczesne biura, instytucje publiczne i firmy
wykorzystujące potencjał tej lokalizacji – m.in. Wojewódzki
Fundusz Ochrony Środowiska i Gospodarki Wodnej.
To miejsce, gdzie biznes rozkwita dzięki sprzyjającej
infrastrukturze i energii otoczenia.
Dojazd
Zarówno samochodem, jak i komunikacją — szybki, wygodny i
bezproblemowy. Teren jest znakomicie skomunikowany z centrum Łodzi i
najważniejszymi punktami miasta.
Ten obszar to gotowe środowisko dla działalności gospodarczej i
biurowej. Działa tu wiele firm usługowych i technologicznych, co
potwierdza atrakcyjność lokalizacji oraz dostęp do funkcjonalnej
infrastruktury.
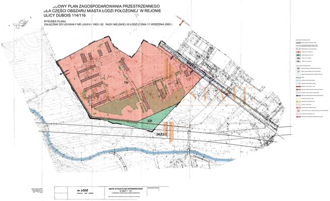
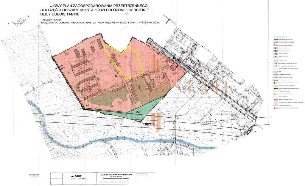
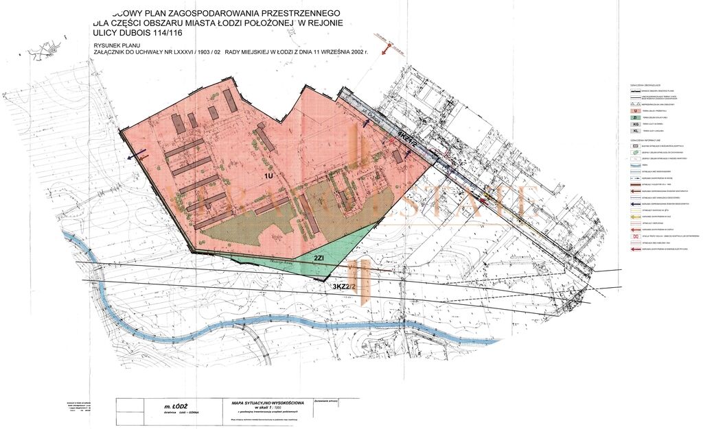
Cały teren jest objęty obowiązującym MPZP – Plan 31, który
jasno określa przeznaczenie: zabudowa usługowa.
Daje to inwestorowi pewność i stabilność planistyczną – możesz
działać szybko i bez niespodzianek.
Dostęp do pełnej infrastruktury technicznej Media dostępne w
drodze:
woda
prąd
kanalizacja
gaz
Gotowy teren pod nowoczesną inwestycję usługową, biurową lub
technologiczną.
Lokalizacja, potencjał i środowisko biznesowe sprawiają, że to
miejsce pracuje na Twoją korzyść już od pierwszego dnia.
Możliwości inwestycyjne
Lokalizacja w strefie o profilu naukowo-technicznym pozwala na
realizację projektów o wysokiej rentowności i dużym potencjale
rozwoju.
Możliwe kierunki zabudowy i funkcje:
A. Zabudowa biurowa
budynki biurowe klasy B+ / A,
siedziby firm technologicznych, centrów naukowo-rozwojowych,
startupów, inkubatorów,
biura operacyjne i call-center.
B. Usługi komercyjne i instytucjonalne
firmy doradcze, kancelarie, centra usług wspólnych,
firmy szkoleniowe i edukacyjne,
obiekty instytucjonalne związane z administracją lub
działalnością publiczną.
C. Inwestycje technologiczne i badawcze
laboratoria, centra rozwojowe, infrastruktura testowa,
firmy z sektora life-science, biotechnologii, IT, elektroniki.
D. Funkcje wspierające
obiekty usługowe obsługujące użytkowników strefy: gastronomia,
usługi podstawowe,
budynki magazynowo-techniczne o nieuciążliwym charakterze,
parkingi naziemne lub garaże.
Najważniejsze atuty nieruchomości
lokalizacja w jednej z najważniejszych stref technologicznych Łodzi
– Bionanopark,
objęcie działki aktualnym MPZP – pewność i przewidywalność
procesu inwestycyjnego,
pełne uzbrojenie w media w drodze,
otoczenie podmiotów biznesowych i instytucji publicznych,
doskonała komunikacja z centrum miasta i kluczowymi węzłami
transportowymi,
możliwość realizacji szerokiego spektrum projektów usługowych,
biurowych i technologicznych.
Kontakt
Zapraszam do kontaktu w celu uzyskania pełnej dokumentacji oraz
omówienia potencjału inwestycji.
Maciej Olejnik
501 - pokaż numer telefonu -
Ogłoszenie ma charakter informacyjny i nie stanowi oferty w
rozumieniu art. 66 § 1 Kodeksu cywilnego
Z pasją do nieruchomości. Z troską o Twój spokój.
Verano Estate powstało z myślą o klientach, którzy oczekują
czegoś więcej niż standardowej obsługi. Od początku naszym celem
było stworzenie marki, która łączy profesjonalizm i skuteczność
z prawdziwą kulturą współpracy.
Niniejsze ogłoszenie jest wyłącznie informacją i nie stanowi
oferty w rozumieniu art. 66 § 1 Kodeksu Cywilnego
Sprawdź zainteresowanie tym ogłoszeniem
Wyświetlenia
Data dodania
Ostatnio widziany
Obserwujących
Wysłane zapytania
Odsłony telefonu
- Wypromuj ogłoszenie
- Zgłoś naruszenie
- Drukuj ulotkę
- Edytuj/usuń ogłoszenie
- Udostępnij ogłoszenie
- Dodaj na Facebook
































