Budynek usługowo mieszkalny ul: Broniewskiego 6
Łódź / Górna Pokaż na mapie ›
Dodane: Czwartek, 12 Luty, 2026 13:35
929 000 zł
Szczegóły ogłoszenia
- Kategoria: Biura i lokale / Sprzedaż
- Powierzchnia:150 m2
- Sprzedaż:Pośrednik
- Cena: 929 000 zł
Opis oferty
Budynek usługowo mieszkalny ul: Broniewskiego 6 na Rondzie Insurekcji Kościuszkowskiej.Prezentuję nieruchomość składającą się z dwóch budynków o funkcji usługowo mieszkalnej położonych na działce o powierzchni 667 mkw.
Budynki zostały wybudowane w 1937 roku, w latach 2017 2020 przeszły kapitalny remont (wymiana okien, elewacja, instalacje, nowy piec dwufunkcyjny), natomiast w 2025 roku została docieplona północna ściana. Wszystkie media miejskie (trzy niezależne liczniki prądowe). Od frontu rolety antywłamaniowe.
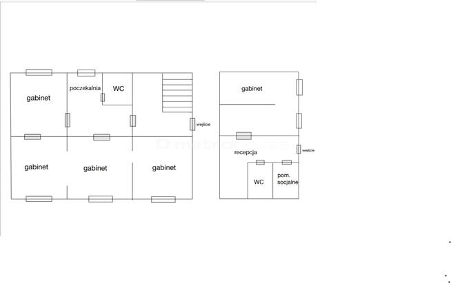
Budynek główny składa się z 3 dużych gabinetów (pomieszczeń), mniejszego gabinetu (wykorzystywanego jako pracownia rentgena), poczekalni oraz wc. Przez ostatnie lata był on wynajmowany na gabinet stomatologiczny. Nad częścią tego budynku znajduje się niewykończone mieszkanie.
Budynek w podwórku składa się z jednego dużego gabinetu wraz z recepcją, wc oraz pomieszczenia socjalnego. Budynek wynajmowany był na gabinet ginekologiczny. W tym budynku mieści się również kotłownia oraz garaż. Na nieruchomości są 3 miejsca postojowe, natomiast istnieje możliwość powiększenia parkingu rezygnując z terenu zielonego.
Nieruchomość doskonale nadaje się nie tylko na gabinety lekarskie ale ze względu na duży ruch oraz bardzo widoczne miejsce na wszelkiego rodzaju usługi.
Zapraszam na prezentację.
Czy wiesz, że możemy przygotować dla Ciebie prezentację on-line nieruchomości? Skontaktuj się z naszym Agentem i zapytaj o szczegóły.
Pomimo, iż Doradcy Metrohouse przykładają szczególną staranność do rzetelnego prezentowania informacji o nieruchomości, nie zawsze jest możliwa weryfikacja wszystkich danych przekazanych od osób trzecich. Niniejsza prezentacja oferty nie jest ofertą w rozumieniu Kodeksu Cywilnego i ma charakter wyłącznie informacyjny.
Powiadom o podobnych ogłoszeniach
Lokalizacja: Łódź
Kategoria: Nieruchomości » Biura i lokale » Sprzedaż
Cena: od 789500 zł do 1068500 zł Powierzchnia : od 128 m2 do 173 m2
Chcę otrzymywać powiadomienia o nowych ofertach
- Wypromuj ogłoszenie
- Zgłoś naruszenie
- Drukuj ulotkę
- Edytuj/usuń ogłoszenie
- Udostępnij ogłoszenie
- Dodaj na Facebook


























