Działka z projektem i pozwoleniem na budowę
Łódź Pokaż na mapie ›
Dodane: Wtorek, 07 Październik, 2025 03:08
300 000 zł
285 zł/m2
Szczegóły ogłoszenia
- Kategoria: Działki i grunty / Sprzedaż
- Pow. działki:1053 m2
- Rodzaj działki:Budowlana
- Sprzedaż:Pośrednik
- Cena: 300 000 zł / 285 zł/m2
Opis oferty
Zamieszkaj w nowoczesnym domu! Działka z gotowym pozwoleniem nabudowę czeka na Ciebie!
Szukasz działki, na której szybko wybudujesz wymarzony dom, bez
zbędnego czekania na formalności? Ta oferta jest idealna dla Ciebie!
Działka przy ul. Biwakowej 58 w Łodzi posiada już pozwolenie na
budowę oraz gotowy projekt nowoczesnego domu jednorodzinnego z
garażem dwustanowiskowym – wszystko, czego potrzebujesz, by ruszyć
z budową od razu!
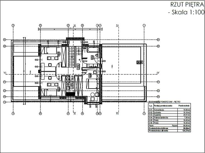
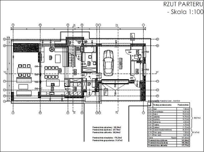
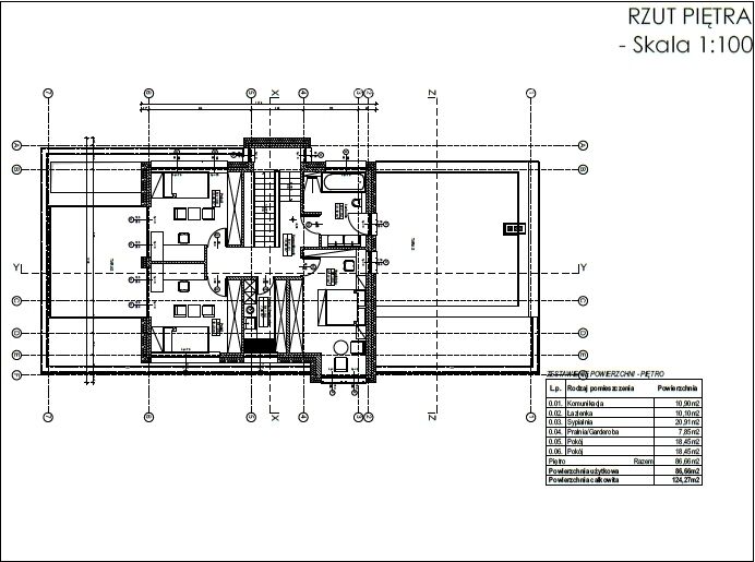
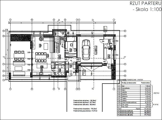
Projekt nowoczesnego domu w cenie! Dom o powierzchni mieszkalnej 176
m² został zaprojektowany z myślą o komforcie Twojej rodziny. Na
parterze znajdziesz przestronny salon połączony z jadalnią i
kuchnią (45 m²), z wyjściem na duży taras – idealne miejsce na
relaks. Dodatkowo na parterze znajduje się toaleta dla gości, hall,
wiatrołap, spiżarnia oraz gabinet do pracy. Na piętrze
zaprojektowano 3 przestronne pokoje, łazienkę, pralnię oraz dwa
duże tarasy, które staną się Twoją prywatną oazą spokoju.
Powierzchnia działki wynosi 22 x 60 metrów, co daje dużo
przestrzeni na realizację Twoich planów. Dodatkowo, garaż
dwustanowiskowy (56 m²) oraz pomieszczenia techniczne zapewniają
komfort i wygodę na co dzień. Co ważne, istnieje również
możliwość zmniejszenia powierzchni domu, jeśli chcesz dostosować
projekt do swoich potrzeb.
Media na działce: prąd na miejscu, a możliwość podłączenia
studni głębinowej zapewnia niezależność wodną. Wszystko to
sprawia, że budowa domu będzie szybka i bezproblemowa!
Doskonała lokalizacja: Zaledwie 5 minut pieszo do sklepu i przystanku
autobusowego, a 10 minut do stacji ŁKA, skąd z łatwością dotrzesz
w różne części Łodzi. Działka znajduje się w spokojnej,
zielonej okolicy, blisko natury, co czyni ją idealnym miejscem na
budowę domu jednorodzinnego z dala od zgiełku miasta.
Nie zwlekaj! Zadzwoń do nas już dziś i umów się na prezentację.
Ta działka z gotowym pozwoleniem na budowę i nowoczesnym projektem
to wyjątkowa okazja!
Jesteś zainteresowany? Chcesz uzyskać więcej informacji? Zadzwoń.
Michał Grzeląska
A może potrzebujesz sprzedać swoje mieszkanie, żeby kupić nowe?
Zadzwoń lub umów się na spotkanie.
Nieodpłatnie pomagamy osobom zainteresowanym uzyskaniem kredytu
hipotecznego na zakup każdej nieruchomości.
Zapraszam do naszego łódzkiego oddziału, który mieści się przy
ulicy Wierzbowej 21 (pomiędzy ul. Pomorską a ul. Uniwersytecką)
"Właścicielem ogłoszenia wraz z jego elementami jest Freedom
Nieruchomości Sp. z o.o. lub podmioty współpracujące. Wszelkie
prawa zastrzeżone. Kopiowanie, rozpowszechnianie oraz korzystanie z
niniejszych materiałów w jakikolwiek inny sposób wykraczający poza
dozwolony użytek określony przepisami ustawy z 4 lutego 1994 r. o
prawie autorskim i prawach pokrewnych (Dz. U. 1994, nr 24 poz. 83 z
późn. zm.) bez pisemnej zgody Freedom Nieruchomości Sp. z o.o. lub
podmiotów współpracujących jest zabronione i może stanowić
podstawę odpowiedzialności cywilnej oraz karnej.
Ponadto niniejsze materiały stanowią tajemnicę przedsiębiorstwa
Freedom Nieruchomości Sp. z o.o. lub podmiotów współpracujących w
rozumieniu ustawy z dnia 16 kwietnia 1993 r. o zwalczaniu nieuczciwej
konkurencji (Dz. U. z 2003 r., Nr 153, poz. 1503 z późn. zm.).
Niniejsze ogłoszenie nie stanowi oferty w rozumieniu Kodeksu
Cywilnego, lecz ma charakter informacyjny."
Sprawdź zainteresowanie tym ogłoszeniem
Wyświetlenia
Data dodania
Ostatnio widziany
Obserwujących
Wysłane zapytania
Odsłony telefonu
Michał Grzeląska
Konto firmowe
Na Lento.pl od 02 sty 2024
Odpowiada szybko
Strona użytkownika
- Wypromuj ogłoszenie
- Zgłoś naruszenie
- Drukuj ulotkę
- Edytuj/usuń ogłoszenie
- Udostępnij ogłoszenie
- Dodaj na Facebook
























