Ekologiczny dom w stanie deweloperskim na nowym osiedlu
Łódź / Bałuty Pokaż na mapie ›
Odświeżone: Piątek, 26 Grudzień, 2025 09:10
1 100 000 zł
9322 zł/m2
Szczegóły ogłoszenia
- Kategoria: Domy / Sprzedaż
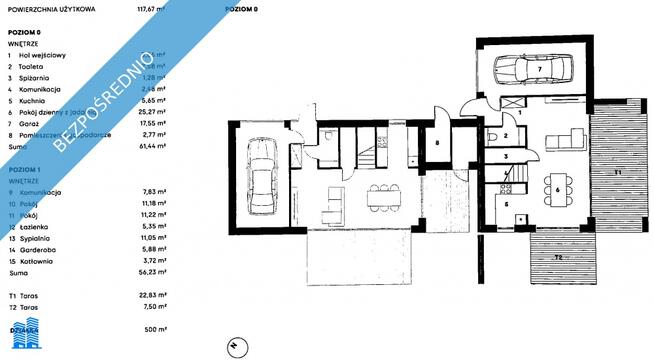
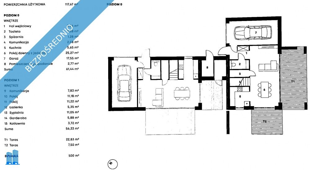
- Powierzchnia:118 m2
- Liczba pokoi:4 pokoje
- Rynek:Wtórny
- Rok budowy:2025
- Sprzedaż:Bez pośredników
- Cena: 1 100 000 zł / 9322 zł/m2
Opis oferty
Sprzedam dom o powierzchni 117.67 mkw w zabudowie bliźniaczej na nowo powstałym, zamkniętym osiedlu FORREST. Dom jest w stanie surowym, deweloperskim.Cechy:
- ekologiczny, zgodnie z najnowszymi normami,
- wysokie pokoje na piętrze, brak skosów,
- okna z podtynkowymi roletami zewnętrznymi,
- instalacje do klimatyzacji, monitoringu, alarmu,
- zadbany ogród z drzewami.
Media:
- woda ze studni głębinowej,
- pompa ciepła powietrzna + ogrzewanie podłogowe wodne,
- szambo.
Ogłoszenie dodane do wielu portali nieruchomości przez portal www.odwlasciciela.pl
Sprawdź zainteresowanie tym ogłoszeniem
Wyświetlenia
Data dodania
Ostatnio widziany
Obserwujących
Wysłane zapytania
Odsłony telefonu
Powiadom o podobnych ogłoszeniach
Lokalizacja: Łódź
Kategoria: Nieruchomości » Domy » Sprzedaż
Cena: od 935000 zł do 1265000 zł Powierzchnia : od 100 m2 do 136 m2
Chcę otrzymywać powiadomienia o nowych ofertach
- Wypromuj ogłoszenie
- Zgłoś naruszenie
- Drukuj ulotkę
- Edytuj/usuń ogłoszenie
- Udostępnij ogłoszenie
- Dodaj na Facebook




















