Legionów 90 - Trzypokojowe mieszkanie z antresolami
Łódź / Polesie Pokaż na mapie ›
Ogłoszenie archiwalne Wygasło: Środa, 31 Grudzień, 2025 07:31
Zapytaj o cenę
Szczegóły ogłoszenia
- Kategoria: Mieszkania / Do wynajęcia
- Powierzchnia:50 m2
- Liczba pokoi:3 pokoje
- Zabudowa:Kamienica
- Piętro :3 piętro
- Liczba pięter:4 piętra
- Sprzedaż:Bez pośredników
- Czynsz:2100 zł
Opis oferty
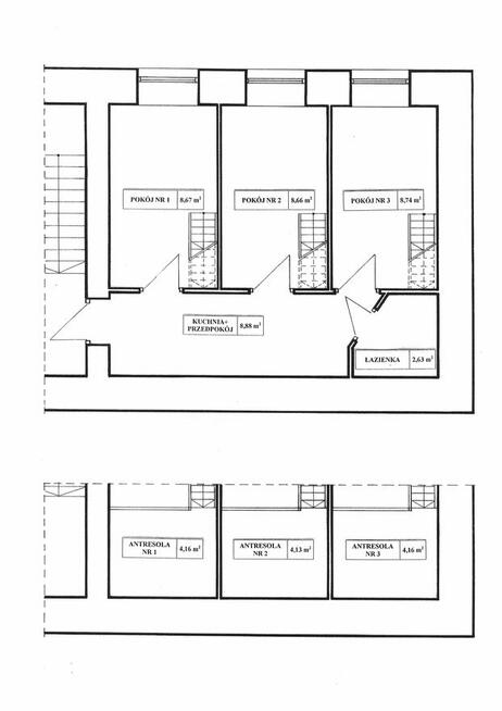
Do wynajęcia od właściciela, trzypokojowe mieszkanie o powierzchni 50m2 (w tym 12,3m2 na antresolach).Mieszkanie znajduje się na 3 piętrze zrewitalizowanej kamienicy przy ul. Legionów 90 (Stare Polesie).
W mieszkaniu znajdują się następujące pomieszczenia:
- pokój nr 1: 12,8 m2 (w tym antresola 4,1 m2);
- pokój nr 2: 12,8 m2 (w tym antresola 4,1 m2);
- pokój nr 3: 12,9 m2 (w tym antresola 4,1 m2);
- kuchnia połączona z przedpokojem;
- łazienka.
Antresole znajdują się nad kuchnią połączoną z przedpokojem i łazienką.
Ciepła woda i ogrzewanie z sieci miejskiej.
Pokoje są wyposażone w m.in. biurka, lampki biurkowe, krzesła obrotowe, regały i szafki (w różnej konfiguracji), szafy ubraniowe, fotele, taborety, suszarki na pranie.
W każdym pokoju są schody na antresole, na których znajdują się materace sprężynowe 140 cm x 200 cm x 18 cm i kontenerki z szufladami.
Aneks kuchenny wyposażony jest w sprzęt AGD taki jak: chłodziarko-zamrażarka, płyta indukcyjna, piekarnik, kuchenka mikrofalowa, czajnik elektryczny i pralka.
W mieszkaniu znajduje się także deska do prasowania, żelazko i odkurzacz.
OPŁATY MIESIĘCZNE:
1. czynsz najmu 700 × 3 = 2.100 złotych miesięcznie za całe mieszkanie;
2. opłaty stałe około 250 × 3 = 750 złotych miesięcznie za 3 osoby, w tym m.in. ogrzewanie, ryczałt za wodę i śmieci,
3. opłaty eksploatacyjne za energię elektryczną ustalane według faktycznego zużycia na podstawie comiesięcznych odczytów stanu licznika (dotychczasowi Najemcy płacili około 65 × 3 = 195 złotych miesięcznie).
Kaucja zwrotna 1.400 × 3 = 4.200 złotych za całe mieszkanie.
Ogłoszenie jest skierowane do osób niepalących.
Umowa najmu i obsługa najmu tylko w języku polskim.
Wynajem bez pośredników – bezpośrednio od właściciela.
Ogłoszenie jest skierowane do osób zainteresowanych najmem - nie jestem zainteresowana współpracą z biurami pośrednictwa, a także ofertami zarządzania najmem, kupna itp.
Ogólna lokalizacja:
260 m – Wydział Nauk Biomedycznych i Kształcenia Podyplomowego UM w Łodzi
650 m – Fizjoterapia, Centrum IT, Wydział Nauk o Zdrowiu, Wydział Wojskowo-Lekarski UM w Łodzi
900 m – CH Manufaktura1 km – Studium Wychowania Fizycznego i Sportu UM w Łodzi1,
1 km – Akademia Muzyczna
1,3 km – ul. Piotrkowska
1,5 km – Aquapark Fala (Park na Zdrowiu)
1,6 km – Wydział Lekarski, Rektorat UM w Łodzi
2,5 km – Dworzec Łódź Kaliska
2,7 km – Dworzec Łódź Fabryczna
2,7 km – Atlas Arena
Sprawdź zainteresowanie tym ogłoszeniem
Wyświetlenia
Data dodania
Ostatnio widziany
Obserwujących
Wysłane zapytania
Odsłony telefonu
To ogłoszenie jest archiwalne i może być nieaktualne.
Basia
Konto prywatne
Na Lento.pl od 04 sie 2025
Strona użytkownika
- Wypromuj ogłoszenie
- Zgłoś naruszenie
- Drukuj ulotkę
- Edytuj/usuń ogłoszenie
- Udostępnij ogłoszenie
- Dodaj na Facebook

























