Mieszkanie Łódź gm. Łódź-Górna Górna, Jana Kilińskiego
Łódź / Górna Pokaż na mapie ›
Dodane: Piątek, 21 Listopad, 2025 12:22
300 000 zł
4762 zł/m2
Szczegóły ogłoszenia
- Kategoria: Mieszkania / Sprzedaż
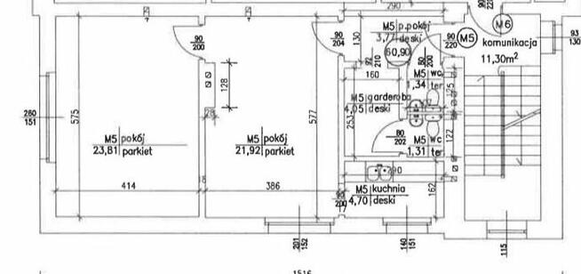
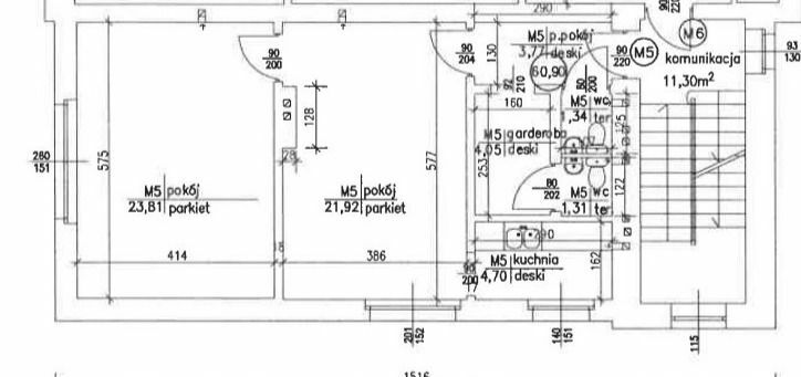
- Powierzchnia:63 m2
- Liczba pokoi:2 pokoje
- Zabudowa:Kamienica
- Tech. budowy:Cegła
- Piętro :2 piętro
- Liczba pięter:2 piętra
- Rynek:Wtórny
- Rok budowy:1924
- Sprzedaż:Pośrednik
- Cena: 300 000 zł / 4762 zł/m2
Opis oferty
Przestronny lokal z ogromnym potencjałem - mieszkanie lub miejsce na Twój biznesSzukasz komfortowego mieszkania albo przestrzeni na działalność w świetnej lokalizacji? Ta oferta jest właśnie dla Ciebie.
Na sprzedaż lokal o powierzchni 63,73 m², położony na drugim piętrze zadbanej kamienicy w spokojnej części Łodzi Górnej.
W środku znajdziesz:
• 2 ustawne pokoje
• oddzielną, jasną kuchnię
• przestronny hall
• 2 toalety
• ogrzewanie gazowe - ciepło i kontrola kosztów
Dotychczas lokal pełnił funkcję gabinetu stomatologicznego, ale po niewielkich przeróbkach z powodzeniem może być lokalem mieszkalnym.
Dodatkowe atuty:
• duża piwnica pełniąca funkcję schronu
• ogrodzony teren - prywatność i spokój
• wjazd przez bramę na pilota - wygoda i kontrola dostępu
• zielony zakątek do odpoczynku
• miejsce postojowe na terenie posesji (w planach budowa garaży)
• świetna infrastruktura - szkoły, przedszkola, sklepy, park
• doskonała komunikacja z całym miastem
• wysokie pomieszczenia
• ściany wewnętrzne między kuchnią a toaletami są ruchome, co daje swobodę w aranżacji i dostosowaniu przestrzeni do własnych potrzeb.
Forma własności: pełna własność
Zadzwoń i umów się na prezentację - to miejsce może być Twoje!
Numer oferty: MNO681525587
Powiadom o podobnych ogłoszeniach
Lokalizacja: Łódź
Kategoria: Nieruchomości » Mieszkania » Sprzedaż
Cena: od 255000 zł do 345000 zł Powierzchnia : od 54 m2 do 72 m2
Chcę otrzymywać powiadomienia o nowych ofertach
- Wypromuj ogłoszenie
- Zgłoś naruszenie
- Drukuj ulotkę
- Edytuj/usuń ogłoszenie
- Udostępnij ogłoszenie
- Dodaj na Facebook


















