Parter - Piotrkowska - Centrum Łodzi
Łódź Pokaż na mapie ›
Odświeżone: Środa, 12 Listopad, 2025 08:06
55 zł
Szczegóły ogłoszenia
- Kategoria: Biura i lokale / Do wynajęcia
- Przeznaczenie:Biurowe
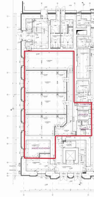
- Powierzchnia:215 m2
- Sprzedaż:Bez pośredników
- Cena: 55 zł
Opis oferty
Oferujemy atrakcyjny lokal o ogólnej powierzchni 215 m2, położony na parterze budynku B, zlokalizowanym w Łodzi przy ul. Piotrkowskiej 276.Sąsiednie inwestycje takie jak Echo Fuzja, czy Ogrody Geyera świetnie pokazały jak ogromny potencjał mają tutejsze nieruchomości.
Rewelacyjna lokalizacja oraz unikatowy, historyczny charakter otoczenia.
Komunikacja miejska pozwoli dotrzeć do Śródmieścia w zaledwie kilka minut.
Teren jest ogrodzony, zapewniamy 24-godzinny monitoring oraz ochronę fizyczną nieruchomości. Dostęp do budynku możliwy jest całodobowo we wszystkie dni tygodnia.
Warto podkreślić, iż nieruchomość posiada dwie niezależne drogi dojazdowe od ul. Piotrkowskiej 276 (sąsiedztwo przystanku tramwajowego) oraz od ul. Milionowej 2.
Zapraszamy do kontaktu.
Sprawdź zainteresowanie tym ogłoszeniem
Wyświetlenia
Data dodania
Ostatnio widziany
Obserwujących
Wysłane zapytania
Odsłony telefonu
Powiadom o podobnych ogłoszeniach
Lokalizacja: Łódź
Kategoria: Nieruchomości » Biura i lokale » Do wynajęcia
Powierzchnia : od 183 m2 do 247 m2
Chcę otrzymywać powiadomienia o nowych ofertach
Topaz
Konto firmowe
Na Lento.pl od 31 sie 2023
Strona użytkownika
- Wypromuj ogłoszenie
- Zgłoś naruszenie
- Drukuj ulotkę
- Edytuj/usuń ogłoszenie
- Udostępnij ogłoszenie
- Dodaj na Facebook









