Sprzedam Mieszkanie 3 pokoje
Łódź / Bałuty Pokaż na mapie ›
Dodane: Czwartek, 29 Styczeń, 2026 11:00
530 000 zł
8500 zł/m2
Szczegóły ogłoszenia
- Kategoria: Mieszkania / Sprzedaż
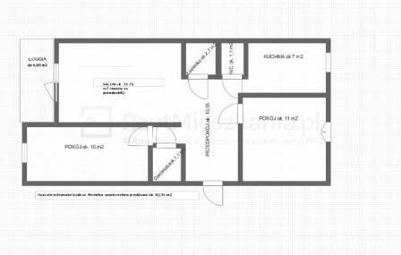
- Powierzchnia:62,35 m2
- Liczba pokoi:3 pokoje
- Zabudowa:Blok
- Tech. budowy:Wielka Płyta
- Piętro :3 piętro
- Liczba pięter:4 piętra
- Rynek:Wtórny
- Rok budowy:1992
- Stan:Do zamieszkania
- Sprzedaż:Bez pośredników
- Inf. dodatkowe:Loggia, Pom. użytkowe
- Nr. księgi wieczystej:Pokaż Przeglądaj księge →
- Cena: 530 000 zł / 8500 zł/m2
- Ulica: Wodnika
Opis oferty
Radogoszcz Wschód ul. Wodnika mieszkanie środkowe III - Pietro pow. użytkowa ok. 62,35 m2.3 pokoje, przedpokój kuchnia ,łazienka ,toaleta i garderoba(schowek)
Duży pokój otwarty na przedpokój i częściowo na kuchnie
Powiadom o podobnych ogłoszeniach
Lokalizacja: Łódź
Kategoria: Nieruchomości » Mieszkania » Sprzedaż
Cena: od 450500 zł do 609500 zł Powierzchnia : od 53 m2 do 71 m2
Chcę otrzymywać powiadomienia o nowych ofertach
Dariusz
Konto prywatne
Na Lento.pl od 09 kwi 2020
Strona użytkownika
- Wypromuj ogłoszenie
- Zgłoś naruszenie
- Drukuj ulotkę
- Edytuj/usuń ogłoszenie
- Udostępnij ogłoszenie
- Dodaj na Facebook





























