Teren Inwestycyjny 1,54 ha z WZ magazyn/produkcja - Łódź
Łódź Pokaż na mapie ›
Odświeżone: Czwartek, 02 Kwiecień, 2026 10:35
6 801 080 zł
440 zł/m2
Szczegóły ogłoszenia
- Kategoria: Działki i grunty / Sprzedaż
- Pow. działki:15457 m2
- Rodzaj działki:Inwestycyjna
- Sprzedaż:Bez pośredników
- Cena: 6 801 080 zł / 440 zł/m2
Opis oferty
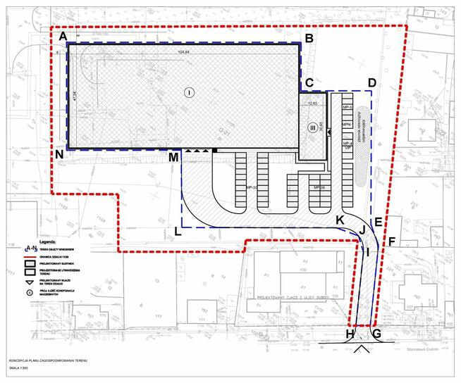
Nieruchomość inwestycyjna pod realizację magazynu z częścią biurową lub zakładu produkcyjnego.Nieruchomość gruntowa niezabudowana z wydaną decyzją o warunkach zabudowy z dnia 20 czerwca 2024 r nr: DPRG-UA-X.840.2024.
Powierzchnia działki: 15.457 m2 Powierzchnia objęta WZ: 9510 m2 Powierzchnia zabudowy projektowanego budynku magazynowego i biurowego: ok. 5350,00m2
Położenie nieruchomości to doskonała lokalizacja w Łodzi przy ul. S. Dubois 117 w bezpośrednim sąsiedztwie terenów lotniska im. W. Reymonta gdzie zlokalizowanych jest wiele obiektów produkcyjnych, publiczna instytucja finansowa WFOŚiGW, naukowych - Bionanopark czy jedna z wiodących firm branży lotniczej w Europie - Wojskowe Zakłady Lotnicze nr 1 S.A.
Sprawdź zainteresowanie tym ogłoszeniem
Wyświetlenia
Data dodania
Ostatnio widziany
Obserwujących
Wysłane zapytania
Odsłony telefonu
Adam Krasiński
Konto prywatne
Na Lento.pl od 08 kwi 2022
Strona użytkownika
- Wypromuj ogłoszenie
- Zgłoś naruszenie
- Drukuj ulotkę
- Edytuj/usuń ogłoszenie
- Udostępnij ogłoszenie
- Dodaj na Facebook










